Jerzmanowa, Kurowice

Dom na sprzedaż

Opis nieruchomości

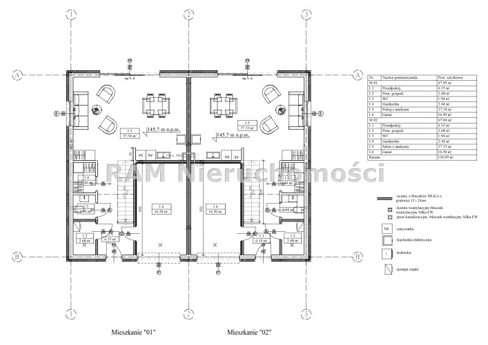
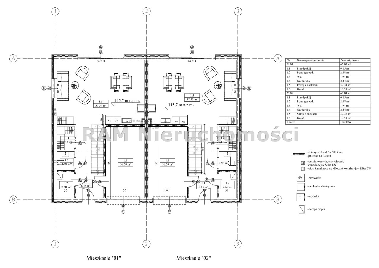
Dom  w zabudowie bliźniaczej o powierzchni 126,53 m2  z przynależną 5  arową działką przy w miejscowości Kurowice

Dom składa się z:

Parter:


- Przedpokój - 6,15 m2
- Pom. gospodarcze - 2,68 m2
- WC - 1,94 m2
- Garderoba - 2,44 m2
- Pokój z aneksem – 37,34 m2
- Garaż - 16,50 m2

Piętro:

- Komunikacja - 6,35 m2
- Pokój - 10,84 m2
- Garderoba -  2,85 m2
- Pokój - 11,63 m2
- Pokój - 10,76 m2
- Pokój - 11,59 m2
- Łazienka - 5,47 m2

Standard Wykończenia Nieruchomości

 

- Fundamenty +izolacja masą dyspersyjną + izolowane styropian fundamentowy10 cm+ folia kubełkowa
- Materiał ścian beton komórkowy 24 cm,
- Ściany działowe beton komórkowy 12cm,
- Strop betonowy monolityczny lub filigran
- Schody betonowe na piętro
- Dachówka betonowa kolor czerwony,
- Rynny metalowe tytan-cynk,
- Elewacja styropian Arbet lub podobny gr. 15cm + siatka + klej biały + putz
- Okna firmy 3 szybowe, kolor złoty dąb jednostronny z roletami zewnętrznymi,
- Kominki wentylacyjne według projektu,
- Parapety zewnętrzne granitowe ,
- Drzwi wejściowe 1-skrzydłowe firmy  Martom lub Wiśniowski
- Brama garażowa elektryczna firmy Krispol lub Wiśniowski,
- Instalacja elektryczna podtynkowa bez gniazd z uzbrojeniem skrzynki rozdzielczej,
- Instalacja c.o. podtynkowa bez pieca
- Ogrzewanie podłogowe w całym domu,
- Instalacja TV każdy pokój,
- Instalacja Wod-Kan podtynkowa i pod posadzkowa bez białego montażu,
- Wykończenie ścian tynk gipsowy maszynowy,

- Ocieplenie posadzki parter styropian gr.10cm,
- Ocieplenie posadzki poddasze styropian gr.5cm,
- Ocieplenie posadzki garaż styropian gr.10cm,
- Posadzki betonowe zacierane na gładko,
- Strop betonowy monolityczny lub filigran nad piętrem
- Ocieplenie poddasza wełna mineralna Rockwool 25cm lub piana 20cm
- Przyłącze wody i kanalizacji,
- Rozprowadzone przewody pod rekuperację bez jednostki bez anemostatów
- Wnętrze do własnej aranżacji,
- Teren wokół domu wstępnie wyrównany, działka ogrodzona siatką 3D kolor grafitowy wysokość 120cm+ podmurówka bez przodu
- Taras z kostki wym.2,5x5+podjazd zgodnie z projektem PZT
- Zagospodarowanie działki do własnej aranżacji,
- Końcowy odbiór budynku po stronie sprzedającego
- Obowiązek dostarczenia prób ciśnieniowych do biura obsługi klienta spółki, po zamontowaniu źródła ciepła centralnego ogrzewania pod rygorem braku gwarancji na prace hydrauliczne dotyczące centralnego ogrzewania.

 

Opcje dodatkowo płatne:

 

  1. Drzwi przesuwane progowe – 8 000,00 PLN,
  2. Drzwi przesuwane HST – 11 000,00 PLN,
  3. Rolety zewnętrzne elektryczne w oknach - 350,00 szt.. PLN,
  4. Pompa Ciepła Panasonic 7KV 30 000,00 PLN
  5. Rekuperator Awenta 9 500,00 PLN

 

Opcje dodatkowo płatne można dobierać według własnych potrzeb!  

Ostateczna cena domu z kompletem wyposażenia i dodatkowo płatnych opcji


Dodatkowe informację:

- Końcowy odbiór budynku po stronie sprzedającego
- Kupujący zwolniony z PCC ( 2%)
- Brak prowizji od kupującego
- bezpłatna pomoc przy kredycie hipotecznym

Nota prawna

Opis oferty zawarty na stronie internetowej sporządzany jest na podstawie oględzin nieruchomości oraz informacji uzyskanych od właściciela, może podlegać aktualizacji i nie stanowi oferty określonej w art. 66 i następnych K.C.

 

Nota prawna

Opis oferty zawarty na stronie internetowej sporządzany jest na podstawie oględzin nieruchomości oraz informacji uzyskanych od właściciela, może podlegać aktualizacji i nie stanowi oferty określonej w art. 66 i następnych K.C.

Szczegóły oferty

Symbol oferty RAM-DS-2352
Powierzchnia 126,53 m²
Powierzchnia użytkowa 165,53 m²
Liczba pokoi 5
Rodzaj domu bliźniak
Liczba pięter w budynku 1
Garaż jest
Okna PCV
Instalacje nowe
Pokrycie dachu dachówka betonowa
Stan budynku do wykończenia
Woda ciepła - piecyk gazowy
Ogrzewanie C.O. GAZOWE
Prąd jest
Kanalizacja miejska

Lokalizacja

Kalkulator kredytowy

PLN
%
Wysokość raty

Kalkulator kosztów

PLN
PLN
PLN
PLN
PLN
PLN
%
PLN
Podatek od czynności cywilno-prawnych
Taksa notarialna (opłata notarialna)
VAT od taksy notarialnej (opłaty notarialnej)
Wniosek do WKW
VAT od wniosku do WKW
Prowizja agencji nieruchomości
VAT od prowizji agencji nieruchomości
Wypisy aktu notarialnego - około
RAZEM (cena + opłaty)

Napisz do nas

Proszę wypełnić to pole
Proszę wypełnić to pole
Proszę wypełnić to pole
Proszę wypełnić to pole
Trwa wysyłanie...

Ta strona wykorzystuje pliki cookies w celach statystycznych oraz w celu dostosowania naszych serwisów do indywidualnych potrzeb klientów. Zmiany ustawień dotyczących plików cookie można dokonać w dowolnej chwili modyfikując ustawienia przeglądarki. Korzystanie z tej strony bez zmian ustawień dotyczących cookies oznacza, że będą one zapisane w pamięci urządzenia.

rozumiem